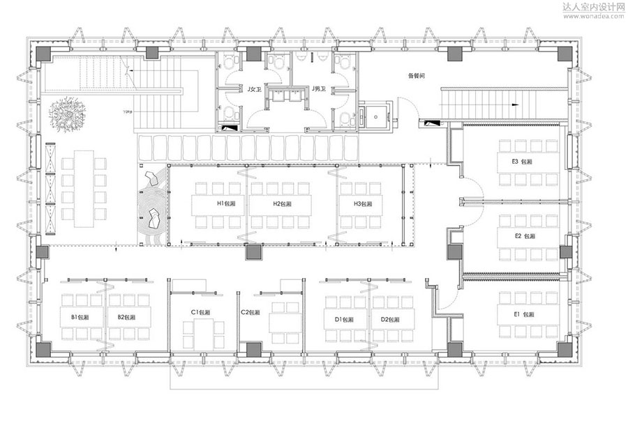
上海裝修設計公司之660平工業風格主題餐廳設計效果,在室內空間營造上,突出鮮明特色形成差異化優勢成為設計重點,依照目標人群與餐廳檔次定位,采用國際氣質的裝飾主義表現手法,通過豐富的色彩變化與高檔材質的運用及多樣設計感強烈的陳設,凸顯了一個身處喧嘩都市的高端餐飲空間格調。
類型
餐飲空間設計

上海裝修設計公司之660平工業風格主題餐廳設計效果,在室內空間營造上,突出鮮明特色形成差異化優勢成為設計重點,依照目標人群與餐廳檔次定位,采用國際氣質的裝飾主義表現手法,通過豐富的色彩變化與高檔材質的運用及多樣設計感強烈的陳設,凸顯了一個身處喧嘩都市的高端餐飲空間格調。
餐飲空間設計
上海裝修設計公司之660平工業風格主題餐廳設計效果,在室內空間營造上,突出鮮明特色形成差異化優勢成為設計重點,依照目標人群與餐廳檔次定位,采用國際氣質的裝飾主義表現手法,通過豐富的色彩變化與高檔材質的運用及多樣設計感強烈的陳設,凸顯了一個身處喧嘩都市的高端餐飲空間格調。




